Royal William Square, Camber, East Sussex TN31 7RX

Guide Price £399,950

2 Bed Property For Sale

Brochure
Enquire Call us

Overview

A modern, architect designed three storey eco-friendly house affording versatile living accommodation and forming part of an innovative ultra-modern development nestling close to the spectacular beach.

A modern, architect designed three storey eco-friendly house affording versatile living accommodation and forming part of an innovative ultra-modern development nestling close to the spectacular beach.

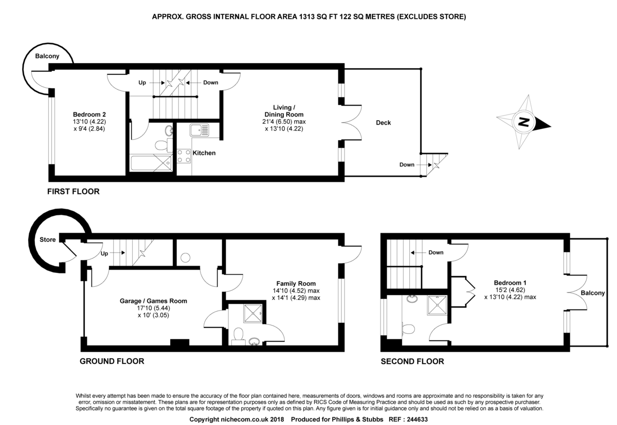
Entrance lobby, Garage/games room, Family room with shower, First floor open plan living/dining room with kitchen area opening onto a decked terrace, Guest double bedroom with small drum balcony and adjacent bathroom, Second floor master bedroom with en-suite shower and balcony, Geo thermal space heating, Double glazing, Solar water heating, Energy rating C, Planted communal garden space, Parking

The property nestles behind the rolling sand dunes, just yards from Camber Sands, the beautiful sandy beach where a variety of activities can be enjoyed including kite surfing, kite buggying, surfing, land yachting, horse riding, fishing as well as numerous other activities both on the beach and nearby including wildlife havens at Dungeness and Rye Harbour Nature Reserve. Watersports are taught at Rye Watersports Lake (1 mile). Nearby road links provide access to the M20 (Junction 10) Ashford which provides further links by both road and rail to London with a high speed link from Ashford to London St. Pancras in 37 minutes and from there to Paris, Brussels and Amsterdam via Eurostar. Camber village offers a range of facilities for day to day needs as well as pubs and restaurants. The nearby Ancient Town and Cinque Port of Rye affords a wider range of amenities. Rye Citadel is famed for its historical associations cobbled streets and architecture with St Mary's Church and the popular, Mermaid Inn. Other activities and facilities in the area include Rye Golf Club (situated in Camber).

A modern three storey house forming part of an ultra-modern ecofriendly development that combines quality and contemporary design with environmental sustainability. The construction is of traditional block work spun walls clad with cedar wood shingles and a specialist render system with a colourful curved turret to the front elevation all beneath a Bauder environmentally bio diverse roof. The property was designed by the award winning architects, Knox Bhavan, to be energy efficient with low carbon emissions, low heat loss and controlled solar gain. Internally, the living accommodation is spacious and light with clean lines giving a contemporary feel. The principal living areas have engineered oak flooring. There is a timber decked balcony on each floor with galvanized steel balustrades together with a paved terrace that leads on to the communal garden.



The property is approached via a flush panelled front door opening into an entrance lobby with stairs off to the first floor. On the ground floor, there is a versatile living space or garage currently used as a games room with a utility area with plumbing for a washing machine. To the rear is a family room with an en-suite shower and a door to the rear terrace and communal dune scape area.

The split level first floor accommodation has a main living/dining area which is light and airy with full height glazed double doors with shutters opening onto a decked terrace with steps leading down to the communal garden. The adjoining kitchen is well fitted and equipped with storage cupboards and drawers with white lacquered door fronts, solid beech woodblock work surfaces with inset stainless steel sink, stainless steel oven, induction hob, integrated dishwasher, fridge and eye level microwave.

To the front of the property is a double bedroom with glazed door to small drum balcony and adjacent. An adjoining family bathroom has contemporary white china fittings comprising a panelled bath with shower attachment and screen, w.c and wash basin.

On the second floor, the master bedroom has glazed double doors opening onto a balcony and a tiled en-suite shower room with a tiled double cubicle and power shower, wash basin, and w.c.


OUTSIDE There is a central landscaped area, which is contoured and planted to imitate the adjoining dunes, from where paths lead to Old Lydd Road and the beach. Parking: There is space to park one vehicle to the front of the integral garage.



FURTHER INFORMATION Local Authority: Rother District Council. Council Tax Band D. 100% Council Tax premium applies to second homes
Mains electricity, water and drainage. Heating: Geo thermal space heating
Predicted mobile phone coverage: EE, Vodafone and 02
Broadband speed: Ultrafast 1000Mbps available. Source Ofcom
Flood risk summary: Very low risk. Source GOV.UK
Service Charge: Currently about £77 per month
Heating Charge: Currently about £58 per month



NOTE The photograph showing the beach are taken from the sand dunes and not from the property.

Floorplan

Floorplan View EPC

Map

Calculators

£

*This mortgage calculator is provided for general information purposes only. It's intended to provide you with an estimate of your potential mortgage payments and does not constitute an offer of finance or advice. The calculations are based on the information you provide and do not take into account your individual needs and circumstances.

The calculator does not include all the costs you will need to pay when taking out a mortgage. Your actual mortgage payments may be higher or lower than the estimates provided by this calculator. The interest rates used in the calculations are subject to change and may not reflect the actual rates available in the market.

Please note that the calculator does not consider changes in interest rates over time, early repayment charges, or any other fees and charges that may apply to your mortgage. You should always seek professional advice before making any financial decisions.

Remember, your home may be repossessed if you do not keep up repayments on your mortgage.

Calculate Your Stamp Duty
£
Results
Stamp Duty To Pay:
Effective Rate:
Tax Band % Taxable Sum Tax

Royal William Square, Camber, East Sussex TN31 7RX

Guide Price £399,950

2 Bed Property For Sale

Brochure
Enquire now 01797 227 338
Crest

JOIN OUR COASTAL + COUNTRY CLUB

…and be first to hear about our latest and ‘off-market’ properties before they go to the open market.