Playden Lane, Iden, Near Rye, East Sussex TN31 7PS

Guide Price £750,000

4 Bed Detached house For Sale

Brochure
Enquire Call us

Overview

A charming, well presented detached Grade II Listed period property set off a quiet country lane on the edge of the favoured village with a large garden backing onto farmland and with southerly rural views to the front across orchards to the sea in the far distance.

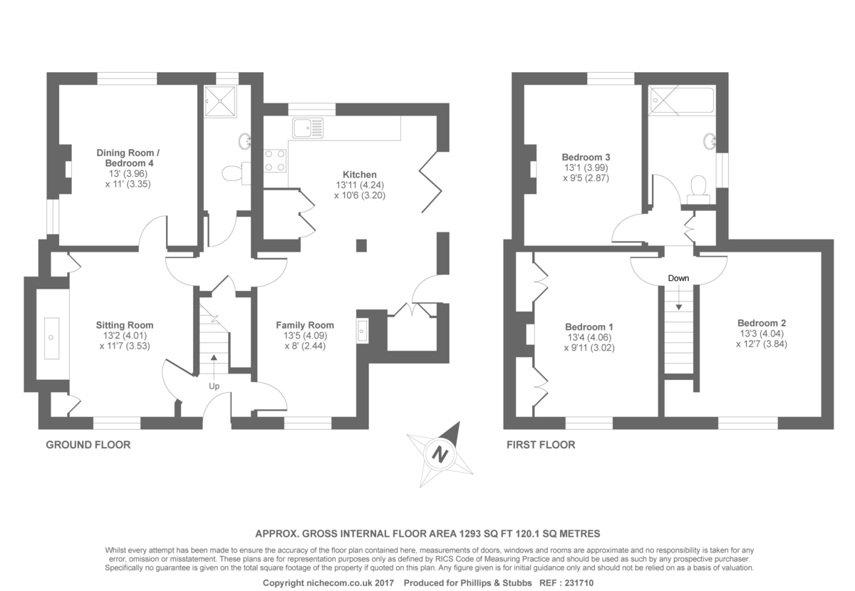
Entrance hall, Sitting room, Dining room/bedroom 4, Open plan kitchen/breakfast room & family room, Inner hall, Shower/cloakroom, Landing, Three bedrooms, Bathroom, Oil central heating, EPC rating D, Traditional cottage garden

Mr Catt's House is located on a minor lane on the edge of the favoured village of Iden, which sits on a hill overlooking the Rother Levels, and has a local community owned convenience store and post office, bowls club, Norman church with castellated bell tower, village hall, cricket ground and public house. From the village there are numerous footpaths and lanes leading across the surrounding countryside and down to the Royal Military Canal. Two miles to the south is the Ancient Town and Cinque Port of Rye with famed period Citadel, cobbled ways, medieval fortifications, range of local independent shops, leisure centre with swimming pool, popular restaurants, weekly markets, schools for all ages and railway station on the Eaastbourne to Ashford branch line with a high-speed service to London St Pancras in 37 minutes, from where there are connections to the Continent via Eurostar. The attractive Wealden town of Tenterden, with wide tree lined High Street, is 9 miles and offers Waitrose and Tesco supermarkets together with Homewood Secondary school and a more comprehensive range of schools. In Peasmarsh village (2 miles) there is a large independent supermarket. The coast is nearby with the spectacular dunes and sandy beach at Camber (6 miles).

A detached Grade II Listed early nineteenth century period cottage presenting white painted weatherboard clad elevations set with sash windows beneath a pitched slate tiled roof. The well-presented accommodation, which has been extended in recent years, is arranged over two levels, as shown on the floor plan.

The property is approached via steps up to a panelled front door with a canopy above opening into a small hall with stairs to the first floor. The sitting room, which overlooks the front garden, has matchboard panelling to one wall, a dado rail, exposed floorboards and an Inglenook fireplace with brick surrounds and hearth a white painted outer surround and overmantle with a fitted wood burning stove and a storage cupboard to either recess and open display shelving above. The second reception room which is flexibly used as a fourth bedroom, overlooks the rear garden and has exposed floorboards together with a fireplace with an Adam style white painted fluted surround and overmantle and brick hearth. Adjacent is an inner hall with an under stairs cupboard and a shower/cloakroom with contemporary fitments comprising a shower enclosure, a close coupled WC, a wash basin and tiled floor. The triple aspect, open plan kitchen/breakfast room and family room has a vaulted ceiling, bi-fold doors opening onto the garden, a brick fireplace with a fitted wood burning stove and a tiled floor with under floor heating. The kitchen area is fitted with an extensive range of custom-made painted wall and base units with hard wood work surfaces, a glazed sink, an integrated dishwasher, built in double oven, an inset induction hob with a filter hood above, space for a fridge freezer and further matching cupboards housing an oil boiler and with space and plumbing for a washing machine and tumble drier.

On the first floor, there is a landing with a built-in linen cupboard. Bedroom 1, which enjoys far reaching rural views to the front of property, has a Victorian fireplace with a cast iron grate, white painted panelling to one wall and built-in storage cupboards. Bedroom 2 has fine rural views to the front and a built-in hanging cupboard. Bedroom 3 overlooks farmland to the rear of property and has a Victorian fireplace with a cast iron grate. The bathroom has white fitments comprising a panelled bath with a wall mounted shower attachment, a close coupled WC and a wash basin.


OUTSIDE The property is approached via a white painted picket gate with central pathway leading to the front of the house. The total plot size extends to approximately 145' x 45' max. To one side of the house garden is set out in a traditional cottage style with an area of lawn, shaped flower and shrub borders enclosed by mature hedgerows. Immediately to the rear is a paved rear terrace, which leads out to an area of lawn and wild flower meadow overlooking an adjacent field. To one side of the property is a log store and garden store.

FURTHER INFORMATION Local Authority: Rother District Council. Council Tax Band F
Services: Mains electricity, water and drainage.
Predicted mobile phone coverage: EE, Vodaphone and O2
Broadband speed: Superfast 42Mbps available. Source Ofcom
Rivers and sea flood risk summary: Very low risk. Source GOV.UK


Floorplan

Floorplan View EPC

Map

Calculators

£

*This mortgage calculator is provided for general information purposes only. It's intended to provide you with an estimate of your potential mortgage payments and does not constitute an offer of finance or advice. The calculations are based on the information you provide and do not take into account your individual needs and circumstances.

The calculator does not include all the costs you will need to pay when taking out a mortgage. Your actual mortgage payments may be higher or lower than the estimates provided by this calculator. The interest rates used in the calculations are subject to change and may not reflect the actual rates available in the market.

Please note that the calculator does not consider changes in interest rates over time, early repayment charges, or any other fees and charges that may apply to your mortgage. You should always seek professional advice before making any financial decisions.

Remember, your home may be repossessed if you do not keep up repayments on your mortgage.

Calculate Your Stamp Duty
£
Results
Stamp Duty To Pay:
Effective Rate:
Tax Band % Taxable Sum Tax

Playden Lane, Iden, Near Rye, East Sussex TN31 7PS

Guide Price £750,000

4 Bed Detached house For Sale

Brochure
Enquire now 01797 227 338
Crest

JOIN OUR COASTAL + COUNTRY CLUB

…and be first to hear about our latest and ‘off-market’ properties before they go to the open market.